Home
About
Gallery
Floor Plan
Site Plan
Award
Location
Contact
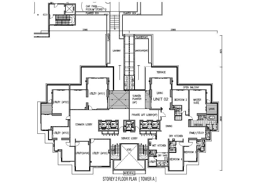
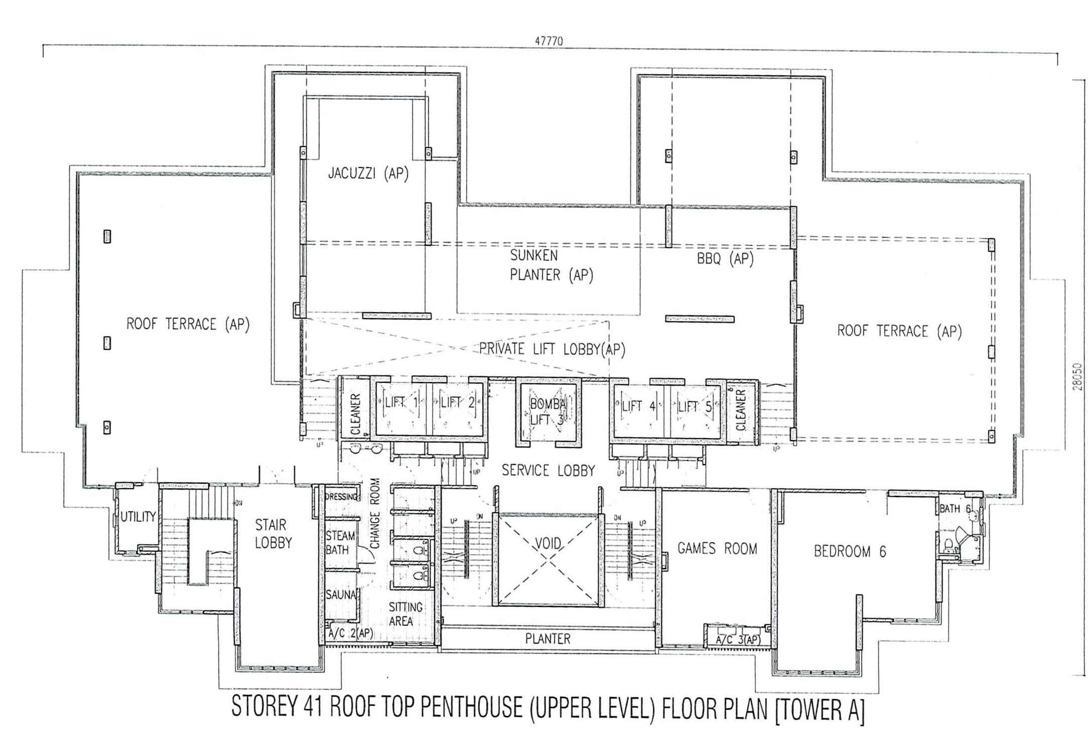
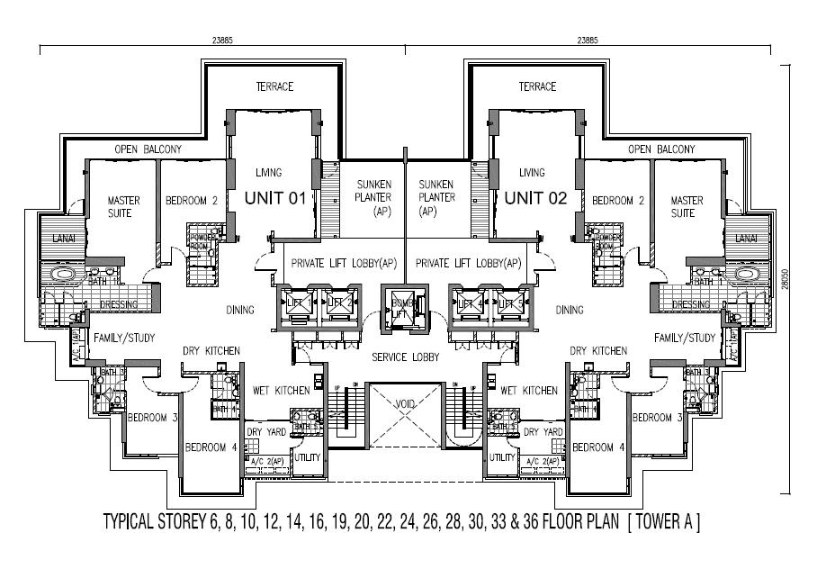
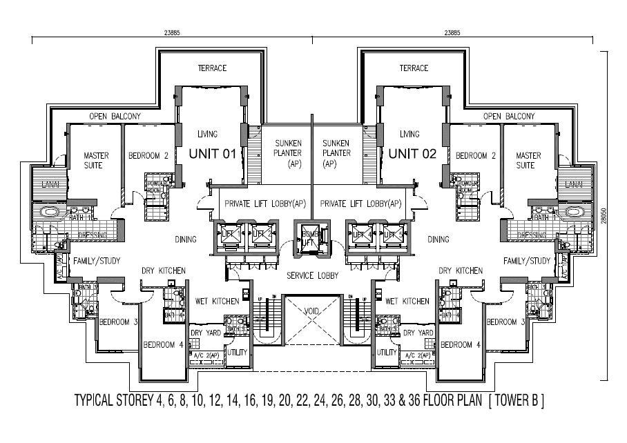
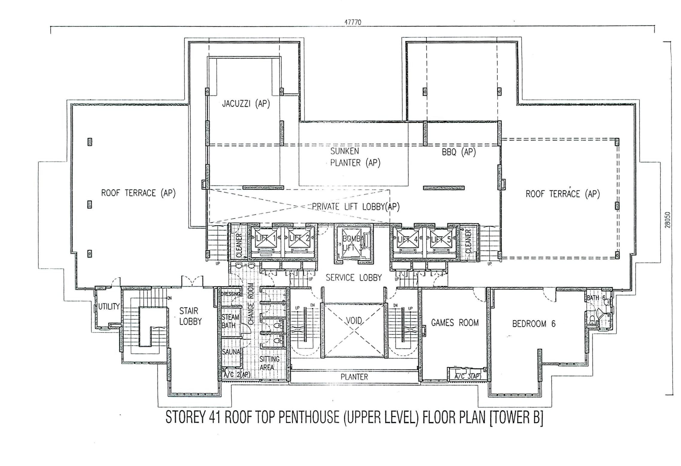
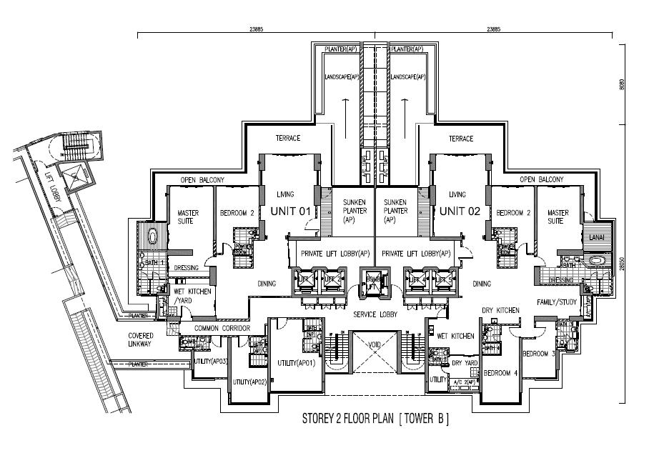
Floor Plan